2 bed2 bath1 parking
Quality townhouse with unmatched convenience and house like proportions
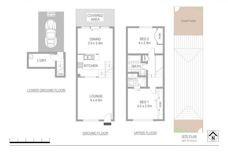
Enjoying a sunny North facing courtyard, this three-level townhouse with an exceptional floor plan provides a lifestyle of wonderful convenience. Separating entertaining and living over three spacious levels with house like proportions. Peacefully set in a highly convenient location, it is footsteps to Concord West train station and village shopping strip, and within minutes to local schools, bicentennial park shopping centres.
- Generous floor plan flowing over 3 spacious levels
- Expansive open plan living & separate dining room
- Easy flow to outdoor courtyard for entertaining
- Two bedrooms with built-ins, master with en-suite
- Neat kitchen, internal laundry, reverse cycle a/c
- Secure basement parking with internal access
- In boutique block with plenty of visitor parking
- Walking distance to Concord West train station
- Close to schools, parks, buses, cafes and shops
- Generous floor plan flowing over 3 spacious levels
- Expansive open plan living & separate dining room
- Easy flow to outdoor courtyard for entertaining
- Two bedrooms with built-ins, master with en-suite
- Neat kitchen, internal laundry, reverse cycle a/c
- Secure basement parking with internal access
- In boutique block with plenty of visitor parking
- Walking distance to Concord West train station
- Close to schools, parks, buses, cafes and shops
-
Land Size143 m2
Have a question? Ask the agents.
Gianluca Pasquale


